Продажа торгового здания

Московская область, Мытищи,

210 000 000 ₽

116 667 ₽ за м²

1 800 м²
Площадь
3
Этажность

Поделиться

Добавить в избранное

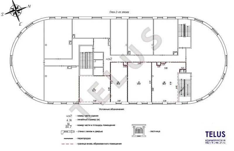
Продается здание офисного типа общей площадью 1800 м2. Центральные коммуникации, 140 квт электрической мощности. 3 этажа+цоколь, кирпичные стены, жб перекрытия. 2017 год постройки. Высота потолков на первом этаже 3.9 метра, на втором этаже 3.8 метра, открытая планировка. Объект находится внутри современного жилого массива, развитая инфраструктура. Здание расположено в 20 минутах от ржд станции Тайнинская, рядом автобусные остановки, ближайшая станция метро Медведково, в 20 минутах езды на авто. Объект №. AFY-800827088

Дата обновления: 15 апреля 2026

Здание Торгово-офисное